2 - 6184 Scott Road, FVREB Out of Town

2 - 6184 Scott Road

FVREB Out of Town

Type: Retail
$1,717,650

About this Retail in FVREB Out of Town

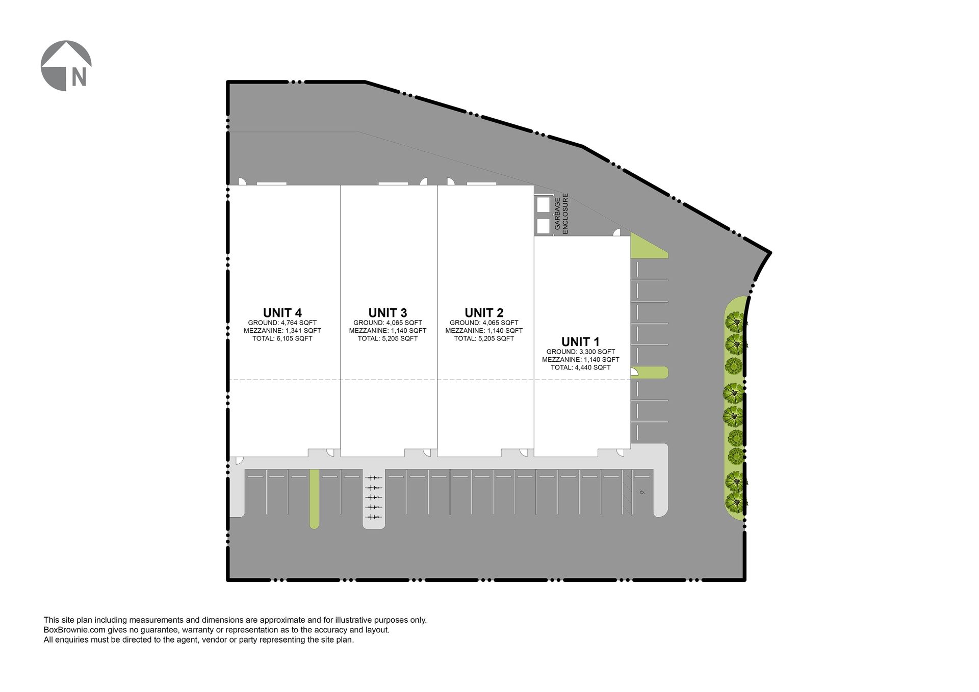
Strategically located close to the Cowichan District Hospital, this light industrial zoned site offers excellent local connectivity. The development features four premium tilt-up industrial strata warehouses with flexible size options ranging from 4,440 to 20,955 square feet. Each unit is engineered for heavy-duty performance, featuring 23'9" clear warehouse ceiling height and robust main floor load capacity of 250 pounds per square foot. Businesses will benefit from convenient access via one 12' x 14' grade-level loading door per unit, alongside a reliable 3-Phase, 250-AMP, 120/208-Volt power supply. The efficiently designed layouts also include sturdy concrete mezzanines with 100 pound per square foot load capacity, perfect for additional storage or future office build-outs. Each unit will come equipped with two gas-fired forced-air heaters and one accessible washroom.

Read More

Strategically located close to the Cowichan District Hospital, this light industrial zoned site offers excellent local connectivity. The development features four premium tilt-up industrial strata warehouses with flexible size options ranging from 4,440 to 20,955 square feet. Each unit is engineered for heavy-duty performance, featuring 23'9" clear warehouse ceiling height and robust main floor load capacity of 250 pounds per square foot. Businesses will benefit from convenient access via one 12' x 14' grade-level loading door per unit, alongside a reliable 3-Phase, 250-AMP, 120/208-Volt power supply. The efficiently designed layouts also include sturdy concrete mezzanines with 100 pound per square foot load capacity, perfect for additional storage or future office build-outs. Each unit will come equipped with two gas-fired forced-air heaters and one accessible washroom.

More Details
  • MLS®: C8078273
  • Type: Retail
  • Sub Type: Industrial

Contact us today to view any of these properties

604.530.0231












Contact us today to view any of these properties

604.530.0231












Similar Listings